Elevated Above The Treetops
					 
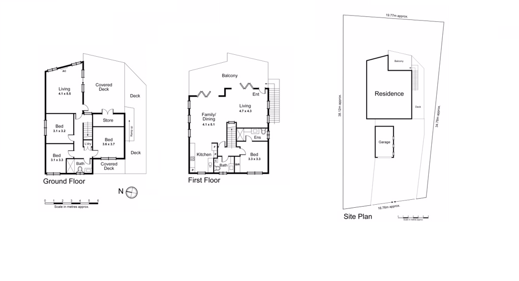
This spacious 4 bedroom sanctuary nestled in a quiet cul de sac features wondrous bay views over 2 levels. The luxurious and restful abode is the perfect low maintenance holiday retreat to escape with friends and family, an ideal sea change destination with the proven track record to generate excellent rental income from short term stays.
Walking distance to Rye’s bay beaches, shopping village, 786/ 788 bus services, primary school and only a short drive to the international award winning, Peninsula Hot Springs, Rye Ocean Beach - St Andrews and Avon Road boutiques and cafes.
The upper level features a Queen bedroom complete with a modern ensuite and additional powder room. A spacious open plan living area incorporates a quality, well appointed kitchen and large dining space spilling out onto a vast deck with panoramic Port Phillip bay views.
					Downstairs has an independent entry allowing flexible private zoning and comprises a further 3 bedrooms, central bathroom, second living area and adjoining large outdoor patio space.
					 
Other features include custom garage perfect for boat storage or automotive purposes, European laundry, low maintenance coastal landscape, polished timber floors, stone bench tops, stainless steel appliances and split system air-conditioning/ heating.
Escape and explore the nearby Boneo farm fresh produce, Red Hill wineries, accoladed breweries, Cape Schanck Bushrangers Bay hikes and scenic Sorrento precinct.
					We invite you to make the next step in your modern wellness lifestyle



















